1/13mehr
2/13mehr
3/13mehr
4/13mehr
5/13mehr
6/13mehr
7/13mehr
8/13mehr
9/13mehr
10/13mehr
11/13mehr
12/13mehr
13/13mehr
Wohnanalge Dorenkamp, Rheine
Über 160 Wohneinheiten mit einer Wohnfläche von insgesamt etwa 10.000m² sollen als Teil eines verkehrsberuhigten Quartiers nördlich von Münster in Rheine entstehen. Das Quartier im Stadtteil Dorenkamp, welches im Rahmen des integrierten Handlungskonzeptes „Soziale Stadt Rheine“ langfristig umgestaltet wird, ist in drei Baubereiche gegliedert, von denen Kleihues + Kleihues Architekten das größte Baugrundstück mit acht Gebäudekörpern und insgesamt 72 Wohneinheiten beplant.
Der städtebauliche Rahmen geht auf einen Wettbewerb aus dem Jahr 2015 zurück. Als Ergebnis sind vier Baufelder mit einer 3-geschosigen Bebauung schollenartig um einen Quartiersplatz organisiert und bilden einen identitätsstiftenden Zusammenhang. Eine einheitliche Landschaftsarchitektur über alle Baufelder unterstreicht dieses Vorhaben. Zahlreiche Grünflächen, begrünte Dächer und die Absicht mehr Baumbestand zu schaffen als im Bebauungsplan gefordert, runden das ökologische Konzept des neuen Quartiers ab.
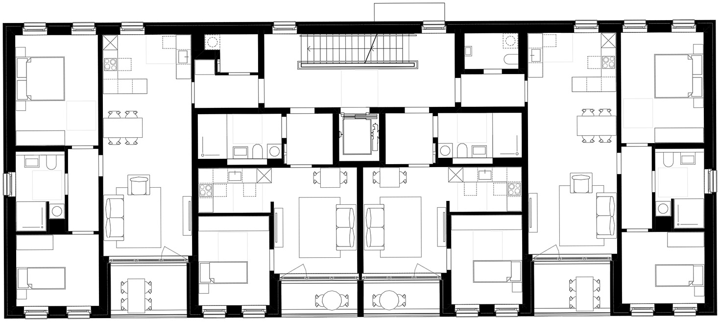
Die acht Baukörper bilden jeweils eine offene Hofstruktur mit einer angerartigen Erschließung über die Höfe. Die linearen und gewinkelten Baukörper schaffen in Form und Gestalt mit sandfarbenem Klinkerstein auf den aus Betonsteinen begrenzten Schollen ein ruhiges Ensemble. Der Zusammenhalt der einzelnen Häuser wird durch die Wahl des einheitlichen Klinkers sowie durch die Wiederholung gleicher Loggien und der Gruppierung eines bodentiefen stehenden Fensterformates gestärkt. Die großformatigen dreiflügeligen bodentiefen Fenster bilden im Wechsel mit den Loggien ein Fassadengrid zum verkehrsberuhigten Quartiersplatz. Dunkelgraue Fenster- und Geländerprofile verstärken den Kontrast zwischen geschlossener Ziegelwand und der Öffnungen in den Fassaden. Das Gebäude wird in Massivbauweise mit einem zweischaligen Mauerwerk ausgeführt.
Die im wilden Verband ausgeführte Ziegelfassade wird an den Hauseingängen durch eine zurückspringende Schichtung aus Verblendköpfen mit Kreuzfuge unterbrochen. Unter einem auskragenden metallischen Vordach bietet die Hauszugangstür samt Briefkastenanlage einen geschützten Eintritt in das Treppenhaus. Die Erschließungen sind als Zwei-, Drei- oder Vierspänner organisiert. Ein besonderes Augenmerk wird auf die nachhaltige Gestaltung und Ausstattung im Innern der barrierefreien Wohnungen gelegt. Auf insgesamt drei Etagen verteilen sich die Zwei- bis Vier-Zimmer-Wohnungen mit einer Größe zwischen 40 – 100 m². Alle Wohneinheiten verfügen über großzügige Loggien. Die drei kleineren gestaffelten Baukörper in Nordosten verfügen zusätzlich über Dachterrassen. Auch das Thema serielles Bauen findet hier Verwirklichung: Bäder und Balkone wurden in Modulbauweise realisiert.
Das seit über 100 Jahren größte Projekt des Wohnungsvereins Rheine eG soll dem Anspruch eines bezahlbaren Wohnraumes für ein breites Bevölkerungsspektrum in fortschrittlicher Architektur genügen. Zeitgemäßer sozialer und geförderter Wohnungsbau stellt Ökologie und Aspekte des demografischen Wandels in den Mittelpunkt. Alle Wohnungen sind daher barrierefrei und teilweise im erweiterten R-Standard nach DIN 18040-2 geplant. Für zukünftige Mobilitätskonzepte stehen Ladestationen für elektrisch betriebene Autos und Fahrräder zur Verfügung.
Adresse : Richardstraße 3-21, 48431 Rheine
Architekt : Jan Kleihues und Norbert Hensel mit Michael Alshut
Bauherr : Wohnungs-Verein Rheine eG
Nutzung : Wohnen / 72 Wohneinheiten
Leistungsphasen : 1-8
BGF : 8.618 m²
Realisierung : 2019-2023
Fotos: Roland Borgmann